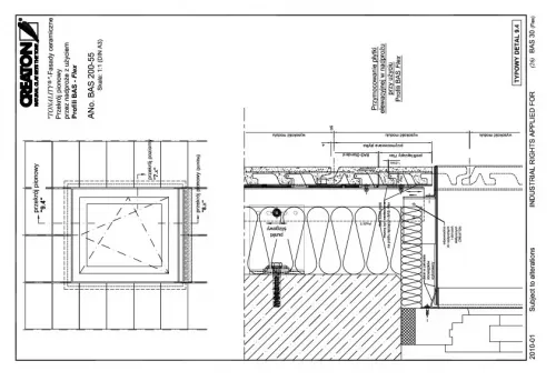
BAS Flex- Typowy detal 9.4
Ups!
Nie jesteś zalogowany.
Nie szkodzi!
Możesz za każdym razem zamknąć okno z komunikatem.
Nie jesteś zalogowany.
Nie szkodzi!
Możesz za każdym razem zamknąć okno z komunikatem.
x
Pliki CAD | BIM: FILTRUJ: wszystkie
- BAS Flex- Typowy detal 9.4 (dwg R) 378.2 KB
Pliki PDF
- BAS Flex- Typowy detal 9.4 188 KB


