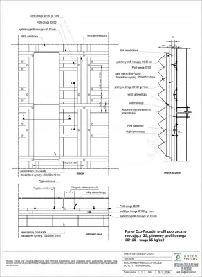
Mocowanie płyta warstwowa_Eko Fasady
Ups!
Nie jesteś zalogowany.
Nie szkodzi!
Możesz za każdym razem zamknąć okno z komunikatem.
Nie jesteś zalogowany.
Nie szkodzi!
Możesz za każdym razem zamknąć okno z komunikatem.
x
Pliki CAD | BIM: FILTRUJ: wszystkie
Pliki PDF
- Mocowanie płyta warstwowa_Eko Fasady 242.1 KB


