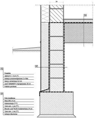
Ściana fundamentowa „24” w budynku niepodpiwniczonym
Ups!
Nie jesteś zalogowany.
Nie szkodzi!
Możesz za każdym razem zamknąć okno z komunikatem.
Nie jesteś zalogowany.
Nie szkodzi!
Możesz za każdym razem zamknąć okno z komunikatem.
x


