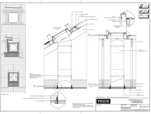
Świetlik z tunelem sztywnym do dachów skośnych | pokrycie blacho-dachówka
Ups!
Nie jesteś zalogowany.
Nie szkodzi!
Możesz za każdym razem zamknąć okno z komunikatem.
Nie jesteś zalogowany.
Nie szkodzi!
Możesz za każdym razem zamknąć okno z komunikatem.
x
Pliki CAD | BIM: FILTRUJ: wszystkie
Pliki PDF
- VELUX TWR 02 blacho-dachówka 303 KB


